EDE-WOLF
HCA Bass/PA/Boxenbau
Ich hoffe es ist in ordnung wenn ich das nochmal aus dem Thread auskopple:
es ist vollbracht:
Ich hab einfach keine geduld für CAD gehabt und immer wieder abgebrochen, darüber hinaus auch so irgendwie zu nix mehr bock gehabt....
kam gerade ne kleine phase dazwischen, aber jetzt is fertig:
Bilder im Anhang
Stückliste:
2x 615x520mm (Seiten)
2x 520x520mm (Boden/Deckel)
2x 585x520mm (Schallwand/Rückseite)
2x 195x460mm (Versteifungen)
1x 265x195mm (Rückseite 6er Volumen)
1x 155x265mm (Seite 6er Volumen)
1x 200x200mm (Versteifungsdreiecke)
Anmerkungen:
Schallwand wird 3cm versenkt
aus dem 200x200 stück werden 2 dreiecke gesägt, diese mittig oben und unten angebracht
Verbindungen entweder per leim+ Schraube oder mit flachdübeln und schraubzwingen.
Die Profis werden es ehh wissen: Am besten wäre natürlich Gehrungsverleimung, also alles auf 60° und dann via leim und klebeband zusammenfügen. (Dann müssen natürlich die maße angepasst werden...)
Material ist 1.5mm Starke Birkenmultiplex. Wenn Spanplatte dann nur ab 1.8er stärke OSB geht zur not auch mit 1.6er, auch da lieber 1.8 (oder ich glaub bei OSB ists 1.9) MDF geht auch, auhc hier würd ich mimimum 1.8er nehmen....
Man KANN (so einem die box zu sauber und direkt klingt) bassreflexports verbauen. Dazu nimmt man 2 handelsübliche baumarktregenrohre (durchmesser 10cm) mit einer länge von 10cm man erhählt so ca. ein 40hz tuning (achtung für die leute die es nach simulieren: ports werden durch die nähe zur drüber liegenden versteifung und den außenwänden virtuell länger.
Die Box sollte auf jeden fall (ob BR oder geschlossen) mit wolle gefüllt werden (aquariumwollte tuts vollkommen. mit gefüllt meine ich tatsächlich gefüllt, nicht irgendwie nur an die wände getackert. Auf die weise wird das gehäuse virtuell größer und es werden resonanzen unterdrückt.
Die Box erfüllt geschlossen am ehesten die kriterien:
Mittenbetonung
Impulsverhalten Bass
Impulsverhalten Mitten
LInearität (geschlossen 55-8khz +/-3db)
Mit dem gewicht ist das sone sache: Ich hatte nicht vor ne High-End Box zu bauen und habe auch einfach keinen tauglichen neodymspeaker gefunden, der im bereich "günstig" liegt. Somit ist die box etwas schwerer, aber bei weitem nicht zu vergleichen mit diesen 40kilo brocken.
ich schätze das gewicht auf knappe 30kg, was imho noch erträglich ist.
... zumal sich die bewertungen gerade zum ende hin erst richtung gewicht verschoben haben, als ich das konzept und die speaker schon da hatte...
Kurze kostenrechnung:
2x Eminence Delta 12 LF: 140€
1x Alpha 6: 32.50€
1x EAPT 80: 16€
Weiche: 50€
Griffe:10€
Terminal: 5€
Holz: 40-60€ je nach bezugsquelle und "eigenintiative" (multiplex)
Schrauben+ Blödsinn: 5€
Finish: Tja je nachdem was man macht: lacken kostet so um die 20€
macht summa summarum: ungefähr +/-300€
Belastbar ist die kiste mit nem knappen KW würd ich sagen
Bassboost hält sie in geschlossenem zustand "nahezu" unbegrenz aus (also jetzt nicht gerade 20db bei 30hz...)
wirkungsgrad liegt bei rechnerischen 98db/watt/meter im bereich <80hz
Untere Grenzfrequenz (-6db) 42hz geschlossen bassreflex bei ca. 38hz (man sieht: kaum ein unterschied, aber mit Bassreflex kommt n oberer bassboost bei ca. 90hz dazu....
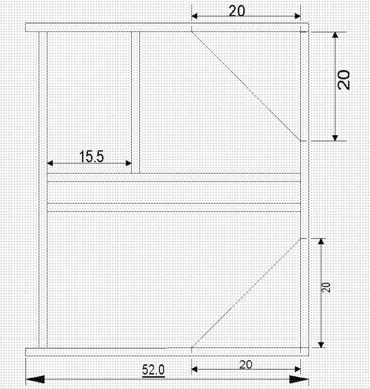
CAD Zeichnung:
Frequenzweiche sieht wie folgt aus:
Soo nun viel spaß beim nachbauen!
Bei fragen: immer gern!
es ist vollbracht:
Ich hab einfach keine geduld für CAD gehabt und immer wieder abgebrochen, darüber hinaus auch so irgendwie zu nix mehr bock gehabt....
kam gerade ne kleine phase dazwischen, aber jetzt is fertig:
Bilder im Anhang
Stückliste:
2x 615x520mm (Seiten)
2x 520x520mm (Boden/Deckel)
2x 585x520mm (Schallwand/Rückseite)
2x 195x460mm (Versteifungen)
1x 265x195mm (Rückseite 6er Volumen)
1x 155x265mm (Seite 6er Volumen)
1x 200x200mm (Versteifungsdreiecke)
Anmerkungen:
Schallwand wird 3cm versenkt
aus dem 200x200 stück werden 2 dreiecke gesägt, diese mittig oben und unten angebracht
Verbindungen entweder per leim+ Schraube oder mit flachdübeln und schraubzwingen.
Die Profis werden es ehh wissen: Am besten wäre natürlich Gehrungsverleimung, also alles auf 60° und dann via leim und klebeband zusammenfügen. (Dann müssen natürlich die maße angepasst werden...)
Material ist 1.5mm Starke Birkenmultiplex. Wenn Spanplatte dann nur ab 1.8er stärke OSB geht zur not auch mit 1.6er, auch da lieber 1.8 (oder ich glaub bei OSB ists 1.9) MDF geht auch, auhc hier würd ich mimimum 1.8er nehmen....
Man KANN (so einem die box zu sauber und direkt klingt) bassreflexports verbauen. Dazu nimmt man 2 handelsübliche baumarktregenrohre (durchmesser 10cm) mit einer länge von 10cm man erhählt so ca. ein 40hz tuning (achtung für die leute die es nach simulieren: ports werden durch die nähe zur drüber liegenden versteifung und den außenwänden virtuell länger.
Die Box sollte auf jeden fall (ob BR oder geschlossen) mit wolle gefüllt werden (aquariumwollte tuts vollkommen. mit gefüllt meine ich tatsächlich gefüllt, nicht irgendwie nur an die wände getackert. Auf die weise wird das gehäuse virtuell größer und es werden resonanzen unterdrückt.
Die Box erfüllt geschlossen am ehesten die kriterien:
Mittenbetonung
Impulsverhalten Bass
Impulsverhalten Mitten
LInearität (geschlossen 55-8khz +/-3db)
Mit dem gewicht ist das sone sache: Ich hatte nicht vor ne High-End Box zu bauen und habe auch einfach keinen tauglichen neodymspeaker gefunden, der im bereich "günstig" liegt. Somit ist die box etwas schwerer, aber bei weitem nicht zu vergleichen mit diesen 40kilo brocken.
ich schätze das gewicht auf knappe 30kg, was imho noch erträglich ist.
... zumal sich die bewertungen gerade zum ende hin erst richtung gewicht verschoben haben, als ich das konzept und die speaker schon da hatte...
Kurze kostenrechnung:
2x Eminence Delta 12 LF: 140€
1x Alpha 6: 32.50€
1x EAPT 80: 16€
Weiche: 50€
Griffe:10€
Terminal: 5€
Holz: 40-60€ je nach bezugsquelle und "eigenintiative" (multiplex)
Schrauben+ Blödsinn: 5€
Finish: Tja je nachdem was man macht: lacken kostet so um die 20€
macht summa summarum: ungefähr +/-300€
Belastbar ist die kiste mit nem knappen KW würd ich sagen
Bassboost hält sie in geschlossenem zustand "nahezu" unbegrenz aus (also jetzt nicht gerade 20db bei 30hz...)
wirkungsgrad liegt bei rechnerischen 98db/watt/meter im bereich <80hz
Untere Grenzfrequenz (-6db) 42hz geschlossen bassreflex bei ca. 38hz (man sieht: kaum ein unterschied, aber mit Bassreflex kommt n oberer bassboost bei ca. 90hz dazu....
CAD Zeichnung:
Frequenzweiche sieht wie folgt aus:
Soo nun viel spaß beim nachbauen!
Bei fragen: immer gern!
- Eigenschaft

