H
heinz102
Guest
Hallo,
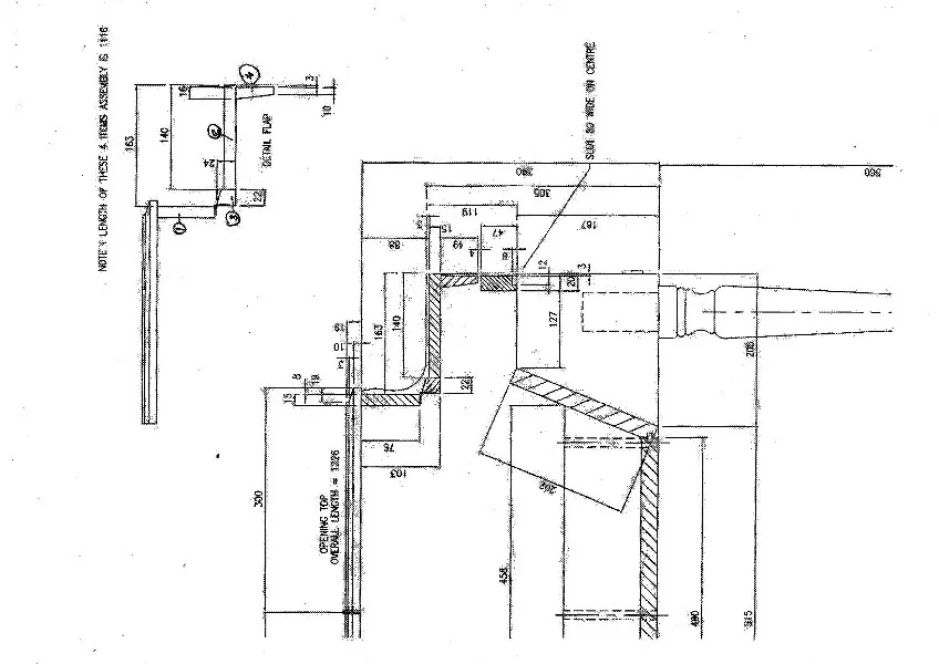
gibt es irgendwo, die Pläne eines typischen Hammond Cabinets? Speziell die Maße des Spieltisches würde mich interessieren. Im Detail die Auflage des Spieltischs, die vordere Wand und Manualblende etc. Ob B oder C gehäuse ist hierbei nicht so wichtig. Ich habe ein Chopgehäuse, das selbe das Helmut für seine A100 hat und habe das mit dem Original der RT vermessen und komme auf unterschiedliche Werte was mich etwas wundert.
Grüsse
PS: müsst auch nicht kostenlos sein...
gibt es irgendwo, die Pläne eines typischen Hammond Cabinets? Speziell die Maße des Spieltisches würde mich interessieren. Im Detail die Auflage des Spieltischs, die vordere Wand und Manualblende etc. Ob B oder C gehäuse ist hierbei nicht so wichtig. Ich habe ein Chopgehäuse, das selbe das Helmut für seine A100 hat und habe das mit dem Original der RT vermessen und komme auf unterschiedliche Werte was mich etwas wundert.
Grüsse
PS: müsst auch nicht kostenlos sein...
- Eigenschaft